Janet "Jan" C. Alber
Licensed Associate Broker
REALTOR®
West Sand Lake, NY
Cell: (518) 366-5337 Office: (518) 674-3238 Fax: (518) 477-2156
social icon 

69 County Road 32c , Windham, NY 12496

New - 15 Hours Ago
View Full Photo Gallery

Property Description

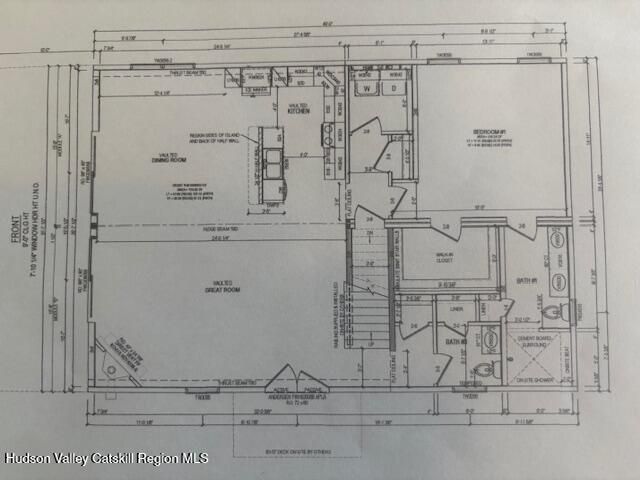
â?¢ Escape NYCâ?¢ Catskills Mountain Retreatâ?¢ New Construction in Windham AreaThe proposed 2,118-square-foot home is designed for modern Catskill living, featuring soaring vaulted ceilings with exposed beams and dramatic trapezoid windows that capture natural light and panoramic views of the surrounding mountains.The open-concept layout connects the great room, kitchen, and dining area, creating the perfect space for entertaining family and friends after a day skiing, hiking, or exploring the Catskills. Step outside to a spacious deck overlooking the mountains or welcome guests through the covered front entrance with elegant double doors.Inside, the home blends rustic mountain character with modern finishes including engineered hardwood floors, knotty pine doors and trim, a hardwood staircase, quartz countertops, and a large kitchen island with custom cabinetry and stainless steel appliances.Comfort and efficiency are built in with high-performance insulation, central air conditioning, high-efficiency forced-air heating, and a radiant heated basement slab. The walk-out basement with 9-foot walls offers additional potential living space, perfect for a recreation room, guest suite, or home theater.Additional features include Andersen Low-E Argon insulated windows, a propane fireplace with smart remote, architectural CertainTeed shingles, and a radon vent system.Whether youre looking for a weekend escape from New York City or a full-time mountain lifestyle, this home offers the perfect blend of luxury, comfort, and Catskill beauty all for under 385.00 a square foot.

69 County Road 32c | MLS# 20260916

This single family home located at 69 County Road 32c , Windham, NY 12496 is currently listed for sale with an asking price of $799,000. This property has 3 bedrooms and 2 full and 1 partial baths with 2118 sq. ft. County Road 32c is located within the Wind-Ash-Jewett school district. Search Windham real estate on jan-alber.coldwellbankerprime.com today.

Gallery

Property Features

Property Type: Residential - Single Family
Basement: Yes
Cooling: Central Air
Fireplaces: 1
Heating: Radiant Floor
Home Style: Chalet
Lot Size: 1.50 Acres
Roof Type: Asphalt
Stories: 2.0
Taxes: $98

Amenities

Open Floorplan
Vaulted Ceiling(s)
Walk-In Closet(s)

Feature Descriptions

Appliances: Stainless Steel Appliance(s), Self Cleaning Oven, Refrigerator, Range Hood, Ice Maker, ENERGY STAR Qualified Refrigerator, ENERGY STAR Qualified Dishwasher, Dryer, Dishwasher, Built-In Gas Range, Built-In Gas Oven
Community Features: Golf
Exterior: Board & Batten Siding, Concrete, Frame, HardiPlank Ty
Fireplace: Great Room, Propane
Flooring: Ceramic Tile, Laminate
Laundry: Electric Dryer Hookup, Main Level
Lot: Few Trees, Gentle Sloping, Near Golf Course, Private
Parcel #: 60.00-2-33
Road Frontage: Town
Road Surface: Asphalt
Sewer: Engineered Septic
SQFT Total: 2118
Utilities: Electricity Connected, Natural Gas Not Available, Sewer Not Available, Propane
Water: Private

Local Schools

School District: Wind-Ash-Jewett

Estimate Your Payment

Estimated Payment

$ 2,019.44 per month $1,778.23 Principal & Interest $8.17 Property Tax $233.04 Homeowner's Insurance

Change Payment Information

%
years/fixed
yearly
yearly (est.)
(Payments are an estimate and may vary by lender)

Demographics

Listed By / Shown By

Listing By

Agency Name: Shaw Country Realty, Inc.

Shown By

Agent Name: Janet "Jan" C. Alber
Agent Phone: (518) 366-5337 Cell
Agency Title: Coldwell Banker Prime Properties

IDX logo

Disclaimer: All information deemed reliable but not guaranteed. All properties are subject to prior sale, change or withdrawal. Neither listing broker(s) or information provider(s) shall be responsible for any typographical errors, misinformation, misprints and shall be held totally harmless. Listing(s) information is provided for consumers personal, non-commercial use and may not be used for any purpose other than to identify prospective properties consumers may be interested in purchasing. Information on this site was last updated 03/12/2026. The listing information on this page last changed on 03/12/2026. The data relating to real estate for sale on this website comes in part from the Internet Data Exchange program of Delta Media Group MLS (last updated Thu 03/12/2026 12:34:36 AM EST) or Global MLS (last updated Thu 03/12/2026 12:22:04 AM EST) or New York State Alliance MLS (last updated Thu 03/12/2026 12:30:33 AM EST) or Hudson Valley Catskill Region MLS (last updated Thu 03/12/2026 12:11:16 AM EST) or OneKey MLS (last updated Thu 03/12/2026 12:28:12 AM EST). Real estate listings held by brokerage firms other than Coldwell Banker Prime Properties may be marked with the Internet Data Exchange logo and detailed information about those properties will include the name of the listing broker(s) when required by the MLS. All rights reserved.

C.B. Prime Properties, Inc. fully supports the principles of the Fair Housing Act and the Equal Opportunity Act. Each franchise is independently owned and operated.

Homestead Funding Corp. Company NMLS# 3232. Equal Housing Lender. State Licensing Information

Coldwell BankerĀ®. All rights reserved. The Coldwell Banker System is comprised of company owned offices which are owned by a subsidiary of Anywhere Advisors LLC and franchised offices. Coldwell Banker Real Estate LLC, fully supports the principles of the Fair Housing Act and the Equal Opportunity Act. Any services or products provided by independently owned and operated franchisees are not provided by, affiliated with, or related to Coldwell Banker Real Estate LLC nor any of its affiliated companies.


Privacy Policy / DMCA Notice / ADA Accessibility

Login to My Homefinder

Pixel